| 篮式管道过滤器 |

|
1、篮式法兰连接直通平底式过滤器 2、篮式法兰连接重叠型直通平底式过滤器

公称直径 DN |
结构尺寸(PN≤5.0MPa)mm |
管塞 N |
| L |
H |
H1 |
D0 |
| 25 |
180 |
260 |
160 |
Φ76 |
Rc3/4 |
| 32 |
200 |
270 |
160 |
Φ76 |
| 40 |
260 |
300 |
170 |
Φ108 |
| 50 |
260 |
300 |
170 |
Φ108 |
| 65 |
330 |
360 |
210 |
Φ108 |
| 80 |
340 |
400 |
250 |
Φ108 |
| 100 |
400 |
470 |
300 |
Φ219 |
| 125 |
480 |
550 |
360 |
Φ273 |
| 150 |
500 |
630 |
420 |
Φ273 |
| 200 |
560 |
780 |
530 |
Φ325 |
| 250 |
660 |
930 |
640 |
Φ426 |
M20x1.5 |
| 300 |
750 |
1200 |
840 |
Φ476 | |
| |
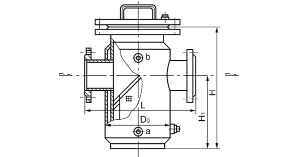
| 3、篮式带夹套型法兰连接直通平底式过滤器 | 
| 公称直径DN |
安装尺寸MM |
夹 套 |
管塞 N |
| L |
H |
H1 |
蒸汽 压力 |
D0 |
进口a |
出口b |
| 25 |
215 |
350 |
180 |
≤0.6MPa |
Φ108 |
G3/4 |
G3/4 |
Rc3/4 |
| 32 |
235 |
360 |
180 |
Φ108 |
| 40 |
300 |
430 |
210 |
Φ159 |
| 50 |
300 |
430 |
210 |
Φ159 |
| 65 |
450 |
490 |
250 |
Φ159 |
| 80 |
460 |
530 |
290 |
Φ273 |
DN20 |
DN20 |
| 100 |
500 |
600 |
345 |
Φ325 |
| 125 |
580 |
700 |
410 |
Φ377 |
DN25 |
DN25 |
| 150 |
600 |
780 |
470 |
Φ377 |
| 200 |
660 |
930 |
580 |
Φ426 | |
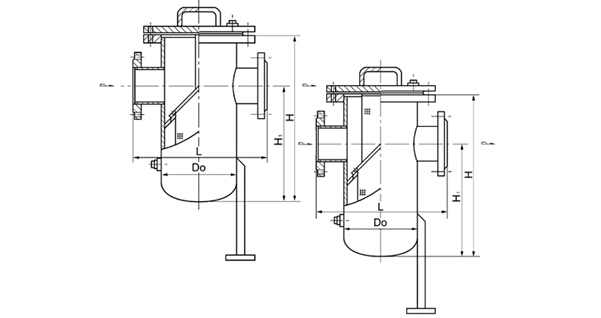
| | 4、篮式法兰连接直通对头式过滤器 5、篮式法兰连接重叠型直通对头式过滤器

公称直径 DN |
公称压力 PN |
结构尺寸 mm |
管塞 N |
| L |
H |
H1 |
H2 |
D0 |
D0 |
D0 |
| 200 |
≤5.0MPa |
800 |
1680 |
300 |
1310 |
Φ500 |
Φ420 |
3-Φ20 |
Rc1" |
| 250 |
840 |
1850 |
300 |
1450 |
Φ550 |
Φ450 |
3-Φ20 |
Rc1" |
| 300 |
960 |
2050 |
300 |
1610 |
Φ600 |
Φ520 |
3-Φ24 |
Rc1" |
| 350 |
1060 |
2210 |
300 |
1740 |
Φ700 |
Φ620 |
3-Φ24 |
Rc1" | |
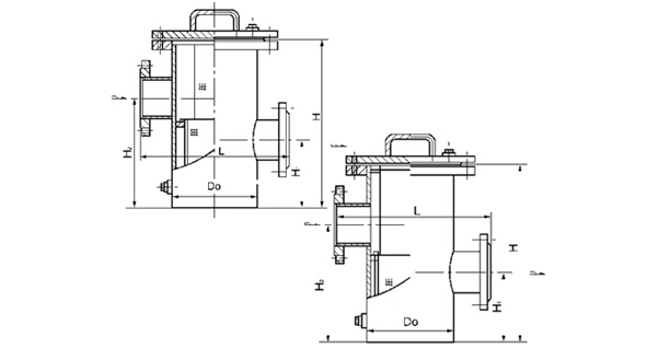
| | 6、篮式法兰连接高低接管平底式过滤器 7、篮式法兰连接重叠型高低接管平底式过滤器

公称直径 DN |
公称压力 PN |
结构尺寸 mm |
管塞 N |
| L |
H |
H1 |
H2 |
D0 |
| 25 |
≤5.0MPa |
180 |
280 |
110 |
180 |
Φ76 |
Rc3/4 |
| 32 |
200 |
285 |
110 |
180 |
Φ76 |
| 40 |
260 |
340 |
120 |
220 |
Φ108 |
| 50 |
260 |
340 |
120 |
220 |
Φ108 |
| 65 |
330 |
400 |
160 |
270 |
Φ133 |
| 80 |
340 |
460 |
180 |
320 |
Φ159 |
| 100 |
400 |
550 |
200 |
390 |
Φ219 |
| 125 |
480 |
630 |
260 |
450 |
Φ273 |
| 150 |
500 |
720 |
310 |
530 |
Φ273 |
| 200 |
560 |
900 |
390 |
670 |
Φ325 |
| 250 |
660 |
1070 |
480 |
800 |
Φ426 |
M20x1.5 |
| 300 |
750 |
1360 |
640 |
1040 |
Φ478 | |
|